IN VOLTA STUDIO

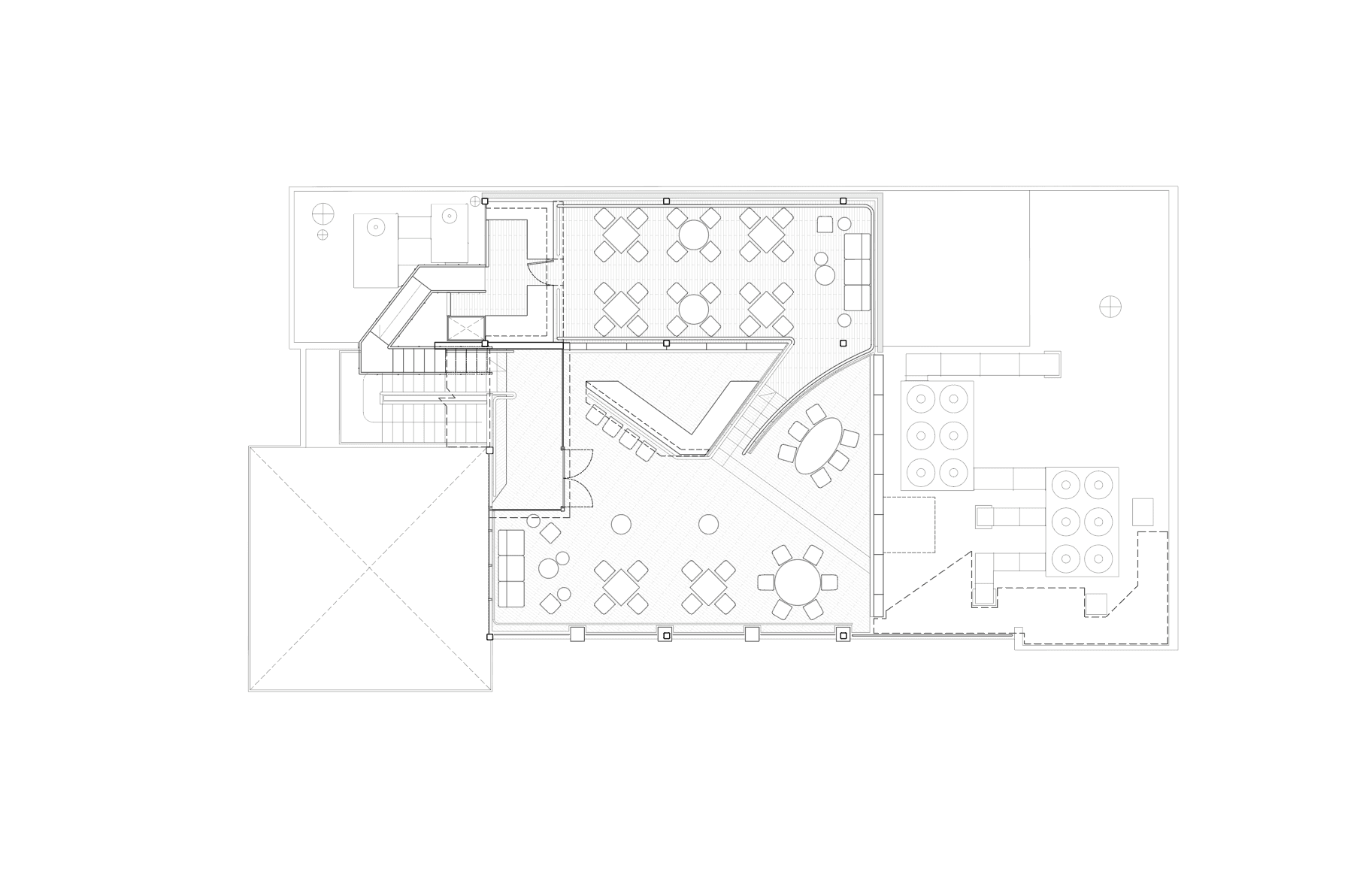
LA GLORIA ROOFTOP BAR

PROYECTOS

Fotografías por Saúl Yuncoxar